

実家で開設した家庭文庫の再開を新居で。
J様の新居は2世帯という将来の生活に備えつつ、ライフワークも実現した家になりました。
お客様データ
宮城県仙台市
J様
夫婦・子ども
建物データ
| 商品名 | :SINCE feelas |
|---|---|
| 敷地面積 | :185.08㎡ (55.98坪) |
| 延床面積 | :155.77㎡(47.12坪) |
| 1階床面積 | :82.29㎡(24.89坪) |
| 2階床面積 | :73.48㎡(22.22坪) |
| アイテム | :太陽光・HEMS・エコキュート |
[きっかけ、トヨタホームに決めるまで]
「将来的に主人のお義母さんとの同居を考えていたことと、主人は短いスパンで全国を飛び回る仕事なので、その度にみんな一緒に引越ししてはいけないなと思い、家を構えることにしました。」という奥様。
お義母さまは西日本にお住まいということで、雪が少なく仙台駅までのアクセスが良いエリアに絞って複数社で家づくりを検討。その中でご希望のエリアで良い場所を確保していた点と、「設計が抜群に良くて、5〜10分程度の会話でも本当に言った通りに意図を汲んでもらうのが早かった。(奥様)」と好評価のご提案でトヨタホームを選んでいただきました。
[コンセプト]
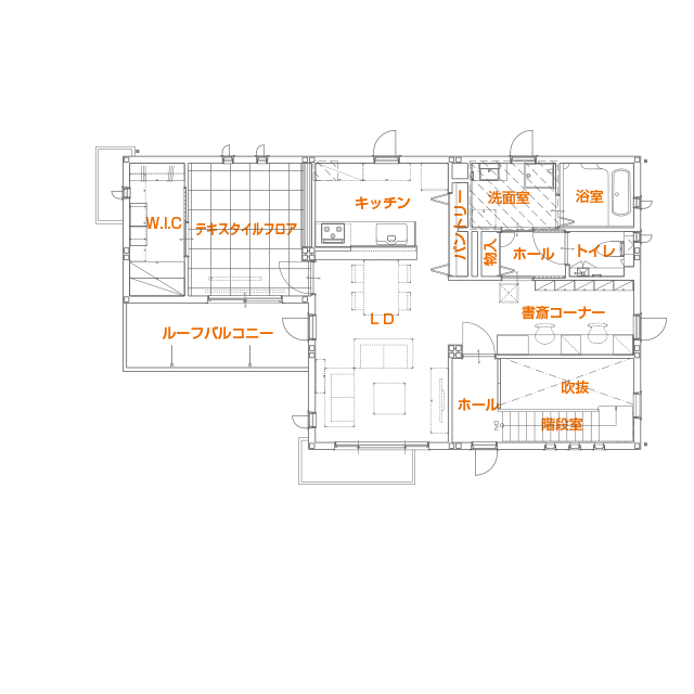
「2世帯で、家庭文庫のスペースがあって、2階に私たちの生活スペースがあればいい。(奥様)」という、はっきりとしたコンセプトに誠実に応えるプランニングを心がけました。2世帯については、1階の親世帯の居室の上にはバルコニーを設けるなど生活音が気にならないように。家庭文庫については、たくさんの親御さんも出入りするのでプライベートスペースを維持しつつ、利用する子どもたちに楽しんでもらえる場所になるよう目線が本棚や吹抜けの明かりなどに向くようにしました。
また、居室としては利用できない廊下は極力少なく明るさをしっかりとることで、これ以外の空間でも快適性を損なわないよう設計しました。
[こだわりのポイント]
家庭文庫
「柱なしでこいう大空間を実現し、そして安全というのはありがたいです。(奥様)」と、トヨタホーム最大の特徴である大空間を実感していただいたJ様邸を象徴する家庭文庫。通称「さくらんぽ文庫」は天井まで届く本棚に壁面収納オープンタイプを採用。絵本を中心に蔵書約2,000冊を余裕で収納。自然光を多く採り入れる窓配置や吹抜け、スケルトン階段、照明によって雰囲気良く仕上がりました。
本の貸出しや読み聞かせにたくさんの子どもたちが「さくらんぼ文庫」に賑やかに出入りすることをイメージし、玄関は広く、テラスからも入れる設計にしました。
ちなみに気になる「さくらぼ文庫」の由来は「今、食べ物の旬がほとんどなくなっていつでも食べられる。でも、さくらんぼは出回る時期が限られていて比較的、旬がある。子どもの本もいつ読んでも楽しいけれど、ピタッとくる年齢、いわゆる旬があると思っていて、子どもたちが旬の本に出会えたらいいなという思いで名付けました。 でも、本当は食べ物の中で一番好き!っていうのもあって。(笑)」ということでした。
廊下を少なく、居室を確保する間取り
2世帯それぞれの生活空間と家庭文庫をしっかりと実現するために、廊下を極力少なくし連続した居室で構成。収納と採光を多く確保しました。「収納スペースはとてもよく考えていただき、夫婦2人で備え付けの収納が余るくらい。あとは、息子が大きくなる時に考えますが増えるのは本ぐらいです。(笑)」「私たち夫婦は同じ場所にいることが多いので独立した空間は必要なく、たくさんの部屋はいらないんです。(笑)」と、ご夫婦らしい間取りになったのではないかと思います。
独立型の2世帯住宅
「お義母さんがゆとりをもって生活できるような生活空間を確保した上で、余ったスペースを家庭文庫にと思っていたんですが、どちらもしっかりスペースがとれました。(奥様)」
1階の親世帯エリアは玄関・キッチン・お風呂・トイレなど必要な空間を効率的に配置。親世帯の居室の上にはバルコニーを配して人が滞留しないレイアウトにし、家庭文庫の上は書斎コーナーにすることでどちらも生活音の影響を抑えるようにしています。
[お気に入りの場所]
お客様の声

[一戸建てを検討中の方へ]
曖昧ではなく、しっかりしたコンセプトを持った方がいいと思います。そして、なんでも言った方がいいです。お金のことを考えると諦めてしまうこともあるんですけども、やっぱりあとで足したくなるので妥協せず思った通りにがんばった方ががいいと思います。あとは、私たちの場合はご担当いただいた方々のすばらしい提案に尽きました(笑)。イメージを拾ってもらわないといけないので、相性というものもあるのかもしれません。(奥様より)
[トヨタホームとうほくへ]
この家はトヨタホームとうほくのみなさんに決めてもらったようなもので(笑)
「ちょっとこの部分をこうしたい」と言うとそれ以上の提案を持ってきてくれて「これはいいですね〜」と決めさせてもらっていました。感覚が鋭いというか、ちょっと言ったようなこともきちんと伝わっていて、「言えば大丈夫、分かってもらえる」という印象が信頼にもつながっていったと思います。(奥様)
スタッフだより
非常に穏やかでデザイン・インテリアのセンスも良く素敵なお二人という印象で、ご要望も分かりやすく明確なものでした。家づくりにあたってやりたいことや叶えたいこと、お二人の夢がしっかり伝わってきましたので、情報の整理ができたプランをご提案できたのではないかと思います。
私個人としては、家庭文庫での本の読み聞かせというシーンを大切に、子ども目線での空間や間取りの提案を心がけました。
[営業担当] なとり りんくう展示場
田村 裕之
2世帯の計画のため駐車場計画・アプローチを明快に分け、動線が交差しないよう、窮屈にならないよう意識しました。外観については勾配屋根の軒の出をあえて短くすることでシンプルで洗練されたフォルムに仕上がりました。
[設計担当者] 高橋 陽一
ご希望のインテリアスタイルが明確でしたのでスムーズに打ち合わせをさせていただく事ができました。シンプルで都会的な雰囲気がありながら、木のぬくもりを感じさせるナチュラルなインテリアに仕上がったと思います。
素材や色彩が映える、明るく開放的な空間で沢山の子ども達が楽しい時間を過ごせると思います。
[インテリアコーディネーター担当者] 武藤 友香
開放感のあるリビング・吹抜け・階段が特徴的で、照明やスイッチの位置等にも気を配り工事を進めてまいりました。とても明るく開放感あふれ、住み心地の良い空間に仕上がったと思います。
[施工担当者] 剱持 博宣




















